Drohnenflüge im Stadtgebiet Ludwigsburg
geplante Drohnenflüge der Stadtverwaltung
Felswand an der Marbacherstraße 220 am 09.04.2026
Fuchshof am 09.04.2026
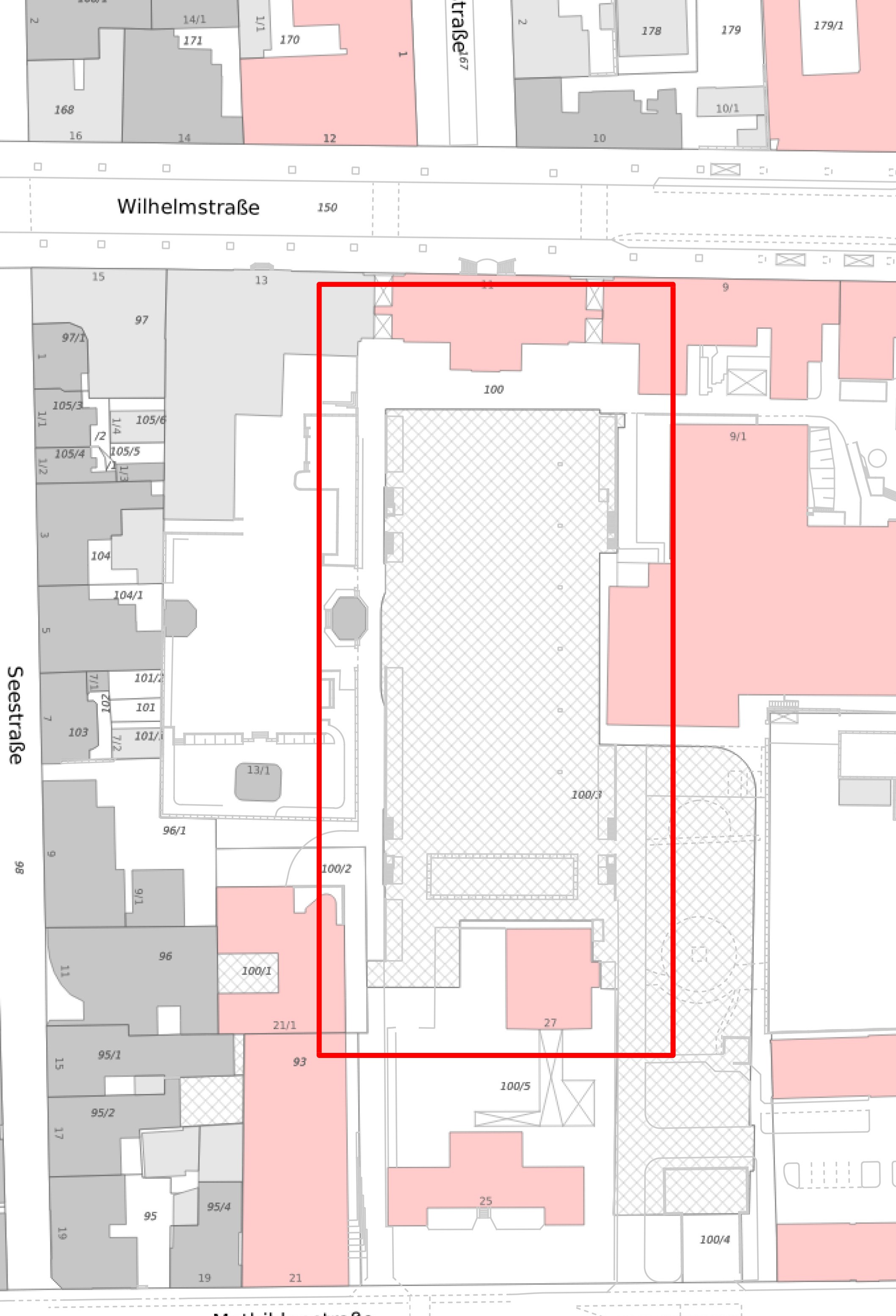
Rathaushof am 26.05.2026 & 09.06.2026
Sternkreuzung ab dem 22.01.2026
kürzlich durchgeführte Flüge
Friedhof Ossweil am 23.03.2026
Ostfriedhof am 23.03.2026
Marktplatz am 18.03.2026 und 23.03.2026
Rathaushof vor und nach dem französischen Markt am 17.03.2026 und 23.03.2026
Kontakt
Stadtplanung, Mobilität und Geoinformation
E-Mail stadtmessung@ludwigsburg.de
E-Mail stadtplanung@ludwigsburg.de
E-Mail stadtplanung@ludwigsburg.de
Telefon 07141 9102828 Stadtplanung, 07141 9102901 Liegenschaftskataster, 07141 9102975 Vermessung
Fax 07141 9102767








