Erweiterungsbau des Mörike-Gymnasium Ludwigsburg
Karlstraße 19, 71638 Ludwigsburg
Erneuerung Hallendach
Projektdaten
Bauherrin: Stadt Ludwigsburg
Entwurf, Planung und Bauleitung: Fachbereich Hochbau und Gebäudewirtschaft
Baukosten: circa 595.000 Euro
Bauzeit: Juli 2014 bis Dezember 2014
Projektbeschreibung
Holz und Stahl
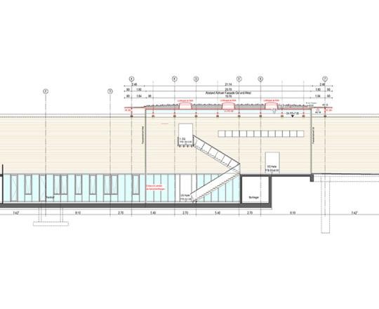
Für die Sanierung oder Erneuerung des Daches der Pausenhalle im Erweiterungsbau wurden verschiedene Alternativen untersucht. Die Neugestaltung sieht dann aus energetischen und bautechnischen Gründen keine Glasfläche mehr, sondern eine geschlossene, tragende Platte aus Brettsperrholzelementen als Dachfläche vor. Die Brettsperrholzelemente wurden als gedämmtes Flachdach mit Gefälle im Bereich der Halle ausgeführt. Die umlaufenden Vordächer wurden an den Kanten so ausgebildet, dass sich eine schmale, horizontale Ansicht ergibt und kein Regenwasser auf die Vorplätze abtropft. Das neue Dach kann problemlos zu Wartungszwecken begangen werden. Die Holzlamellen der Dachuntersicht verbessern zusätzlich die Akustik der Halle. Die Holzbinder wurden durch ein neues, sichtbares Stahltragwerk ersetzt.
Lichtkuppel und Glasfassade
Durch die neuen Oberlichtbänder an den Längsseiten löst sich das Hallendach von den angrenzenden Baukörpern der Klassenzimmer. Zur Erfüllung der höheren Anforderungen an die Entrauchung wurden Lichtkuppeln in die Dachfläche und Nachströmöffnungen in die Fassade zum Werkhof eingebaut. Durch die Kuppeln, die neuen Oberlichtbänder an der Nord- und Südseite sowie die großen, bestehenden Glasflächen der Ost- und Westseite ist die Pausenhalle weiterhin großzügig belichtet.
Energiesparende Beleuchtung
Im Wechsel zum Rhythmus der Lichtkuppeln wurden neue, großformatige und energiesparende Led-Leuchten von der Hallendecke abgependelt.


